Zum Inhalt springen
0351 - 4 31 31 31

Jetzt Eigentumswohnungen sichern – nur noch wenige Einheiten verfügbar! Kaufanfrage stellen →

Wohnungen verfügbar

Vierseitenhof "Am Erlengrund"

Ein einzigartiges Ensemble aus historischer Bausubstanz und modernem Neubau. 12 hochwertige Eigentumswohnungen in idyllischer Lage am westlichen Stadtrand von Dresden.

Am Erlengrund 6, 01156 Dresden-Zöllmen
Westlicher Stadtrand von Dresden, ruhige Lage im Grünen
Prospekt herunterladen (PDF)

Auf einen Blick

12
Eigentumswohnungen
4
Gebäude
69-117
m² Wohnfläche
2
Denkmalgeschützt
Steuervorteile durch Denkmalschutz-AfA
KfW-Förderung für energieeffizientes Bauen
Provisionsfrei direkt vom Bauträger
Bauträger
PM Projekt Mockritz GmbH
Geschäftsführung: Jens Lattermann, Christian Lattermann

Ein historisches Ensemble neu belebt

Der Vierseitenhof "Am Erlengrund" vereint auf einzigartige Weise den Charme historischer Architektur mit den Annehmlichkeiten modernen Wohnens. Zwei denkmalgeschützte Gebäude – das Haus am Brunnen und die alte Scheune – werden behutsam saniert und zu hochwertigen Wohnungen umgebaut.

Ergänzt wird das Ensemble durch zwei architektonisch angepasste Neubauten, die sich harmonisch in die Hofstruktur einfügen. So entsteht eine exklusive Wohnanlage mit dem besonderen Flair eines historischen Vierseitenhofes.

Historische Wurzeln

Der Ortsteil Zöllmen hat slawische Wurzeln – sein Name leitet sich vom altslawischen "Zelebín" ab. Der Vierseitenhof stammt aus dem 19. Jahrhundert und war einst ein landwirtschaftlicher Betrieb. Im Zentrum der Anlage befindet sich ein kunstvoller Zierbrunnen, 1989 vom Dresdner Bildhauer Eberhard Wolf geschaffen, der als Herzstück der neuen Wohnanlage erhalten bleibt.

Unsere Vision

Wir schaffen einen Ort, an dem Geschichte und Moderne harmonisch verschmelzen. Ein Zuhause für Menschen, die das Besondere suchen – mit eigenem Garten, Terrassen und dem Charme eines historischen Hofes.

Die Gebäude

Vier Häuser, ein Ensemble

Jedes Gebäude hat seinen eigenen Charakter – von der liebevoll sanierten historischen Substanz bis zum modernen Neubau.

Haus am Brunnen - Visualisierung
Denkmalgeschützt

Haus am Brunnen

Das Hauptgebäude des historischen Hofes. Denkmalgerecht saniert mit Erhalt der charakteristischen Architektur. Großzügige Wohnungen mit hohen Decken und historischem Flair.

Wohneinheiten
Wohnungen 1-3 (EG, OG, DG)
Haus alte Scheune - Visualisierung
Denkmalgeschützt

Haus alte Scheune

Die ehemalige Scheune wird zu exklusiven Wohnungen umgebaut. Offene Raumkonzepte, sichtbare Holzbalken und moderne Ausstattung verschmelzen zu einzigartigen Wohnräumen.

Wohneinheiten
Wohnungen 4-6 (EG, OG, DG)
Haus Erle - Visualisierung
Neubau

Haus Erle

Der Neubau fügt sich harmonisch in das Ensemble ein. Moderne Architektur, energieeffiziente Bauweise nach KfW-Standard und zeitgemäße Grundrisse für flexibles Wohnen.

Wohneinheiten
Wohnungen 7-12 (EG, OG, DG)
Wohnungsübersicht

Die Wohnungen im Überblick

Von der gemütlichen 2-Zimmer-Wohnung bis zur großzügigen Maisonette – für jeden Anspruch das passende Zuhause.

Wohnung Gebäude Zimmer Wohnfläche Etage Besonderheiten Status
Wohnung 1 Haus am Brunnen 3 76,88 m² EG Garten Verfügbar
Wohnung 2 Haus am Brunnen 3 70,91 m² OG Balkon Verfügbar
Wohnung 3 Haus am Brunnen 3 74,23 m² DG Balkon Verfügbar
Wohnung 4 Haus alte Scheune 3 81,53 m² EG Garten Verfügbar
Wohnung 5 Haus alte Scheune 3 75,97 m² OG Balkon Verfügbar
Wohnung 6 Haus alte Scheune 4 100,59 m² DG Balkon Verfügbar
Wohnung 7 Haus Erle 4 116,64 m² EG Garten + Wintergarten Verfügbar
Wohnung 8 Haus Erle 4 102,38 m² EG Garten Verfügbar
Wohnung 9 Haus Erle 4 103,00 m² OG Balkon Verfügbar
Wohnung 10 Haus Erle 3 71,63 m² EG Garten, barrierefrei Verfügbar
Wohnung 11 Haus Erle 3 89,59 m² OG Balkon Verfügbar
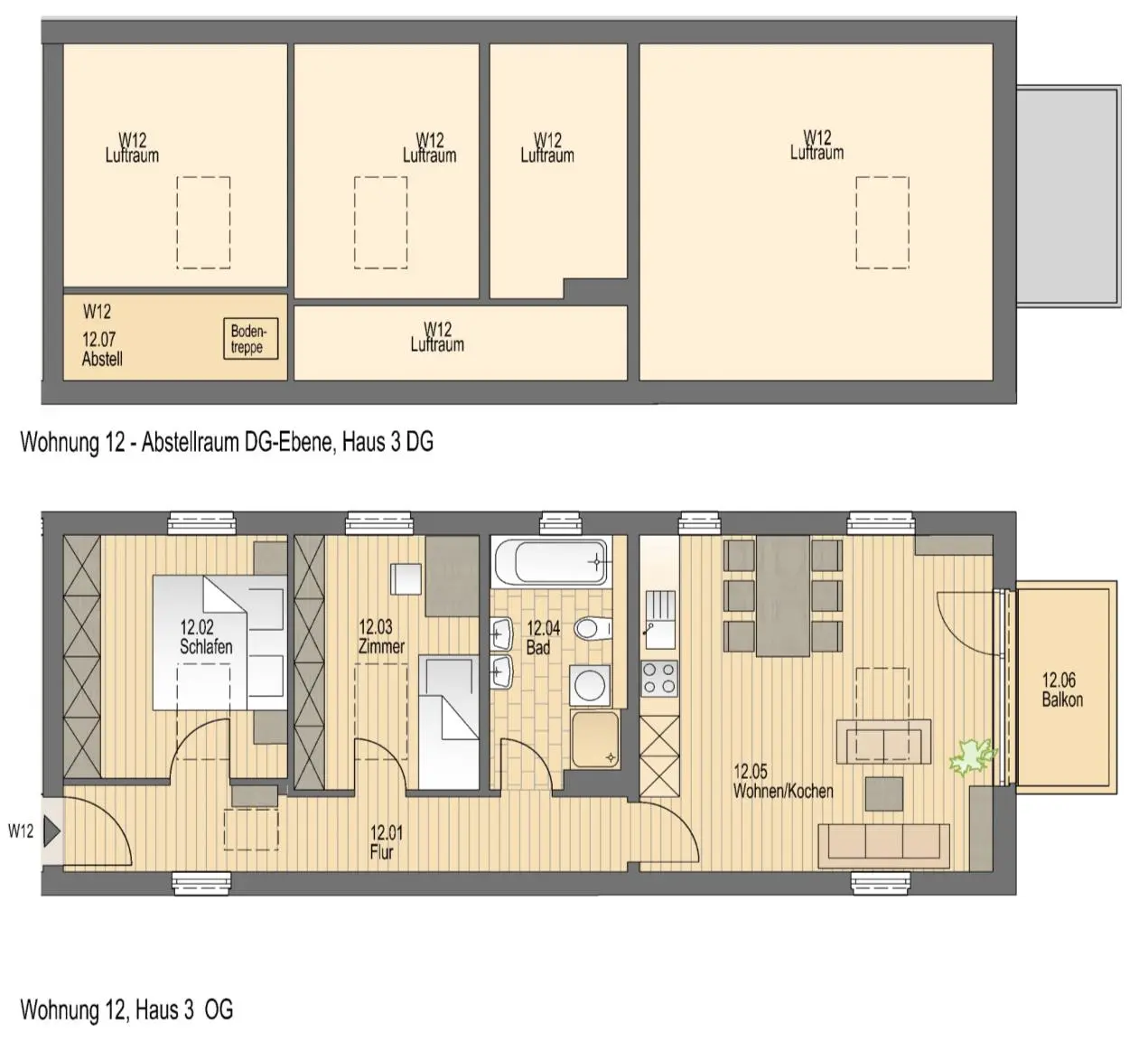
Wohnung 12 Haus Erle 3 69,51 m² DG Balkon Verfügbar

Alle Angaben sind ca.-Werte. Verbindliche Wohnflächenberechnungen erhalten Sie mit dem detaillierten Exposé.

Ausstattung & Qualität

Hochwertige Materialien, moderne Technik und sorgfältige Verarbeitung – für nachhaltiges Wohnen auf höchstem Niveau.

Energieeffizienz

Alle Gebäude werden nach aktuellen KfW-Effizienzstandards gebaut bzw. saniert. Wärmepumpe, kontrollierte Wohnraumlüftung und hochwertige Dämmung sorgen für niedrige Nebenkosten.

Solide Bauweise

Massivbau mit hochwertigen Materialien. Bei den denkmalgeschützten Gebäuden werden historische Baustoffe mit moderner Technik kombiniert.

Denkmalschutz

Die Sanierung erfolgt in enger Abstimmung mit der Denkmalbehörde. Historische Details wie Holzbalken, Gewölbe und Fassadenelemente werden erhalten und restauriert.

Hochwertiger Innenausbau

Echtholzparkett, Fußbodenheizung, hochwertige Sanitärobjekte und moderne Elektroinstallation. Auf Wunsch sind individuelle Anpassungen möglich.

Carport & Stellplätze

Jede Wohnung erhält einen Carport-Stellplatz. Zusätzliche Fahrradstellplätze und Abstellmöglichkeiten für jede Einheit.

Außenanlagen

Gepflegter Hofbereich mit historischem Brunnen als Mittelpunkt. Private Gärten für Erdgeschosswohnungen, Balkone und Terrassen für alle Einheiten.

Lage & Umgebung

Dresden-Zöllmen: Ländliche Idylle, urbane Nähe

Der Vierseitenhof liegt in Dresden-Zöllmen, einem beschaulichen Ortsteil am westlichen Stadtrand. Hier genießen Sie die Ruhe und Natur des Umlandes und erreichen dennoch in wenigen Minuten alle Annehmlichkeiten der Landeshauptstadt.

Die Umgebung bietet ausgedehnte Feld- und Waldgebiete für Spaziergänge und Radtouren. Gleichzeitig sind Einkaufsmöglichkeiten, Schulen und ärztliche Versorgung in unmittelbarer Nähe vorhanden.

Dresden Zentrum
Ca. 15 Minuten mit dem Auto, gute Busanbindung
Natur & Erholung
Feldwege und Wälder direkt vor der Haustür
Infrastruktur
Einkaufsmöglichkeiten, Schulen und Ärzte in der Nähe
Verkehrsanbindung
A4, A17 und B173 gut erreichbar
Ausflugsziele

Natur und Erholung vor der Haustür

Die Umgebung von Zöllmen bietet zahlreiche Möglichkeiten für Freizeitaktivitäten und Naturerlebnisse.

Zschonergrund

Das romantische Naturschutzgebiet Zschonergrund mit seinem wildromantischen Bachtal lädt zu ausgedehnten Wanderungen ein. Ein Kleinod der Dresdner Natur direkt vor Ihrer Haustür.

Zschonermühle

Die historische Zschonermühle, eine der ältesten Mühlen Dresdens, ist heute ein beliebtes Ausflugsziel mit Gastwirtschaft und Biergarten – ideal für einen gemütlichen Sonntagsausflug.

Alpaka Farm

Die nahegelegene Alpaka Farm in Gompitz bietet Wanderungen mit den flauschigen Tieren – ein besonderes Erlebnis für Groß und Klein und perfekt für Familienausflüge.

Luftbad Zschonergrund

Das historische Luftbad im Zschonergrund lädt im Sommer zum Schwimmen und Entspannen ein – ein naturnahes Freibad mit besonderem Charme.

Jetzt kaufen

Ihre neue Eigentumswohnung wartet auf Sie

Sichern Sie sich jetzt eine der begehrten Wohnungen im Vierseitenhof. Wir begleiten Sie von der ersten Besichtigung bis zur Schlüsselübergabe.

Persönliche Beratung und Besichtigungstermine
Transparente Preise ohne versteckte Kosten
Flexible Finanzierungsmöglichkeiten

Kontaktieren Sie uns

Fordern Sie das ausführliche Exposé an oder vereinbaren Sie einen persönlichen Beratungstermin.

Wir melden uns innerhalb von 24 Stunden bei Ihnen.